Eagle Bay Summerhaus - over the road from beach | House in Eagle Bay

6 Bedroom House in Naturaliste, Eagle Bay
Kick back after a day enjoying the wonders of Eagle Bay beach, walk home and chill out in this quintessential Down South beach house. Nestled into its coastal landscape, this recently renovated 6 bedroom, the 3 bathroom beachside residence is a wonderful holiday home to enjoy balmy summer days or a winters escape. Located in one of the South West's most prestigious hamlets within easy walking distance to Eagle Bay beach.
The space
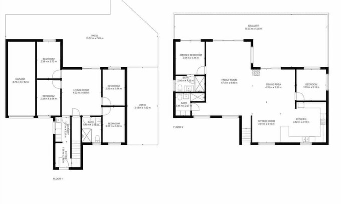
This home offers an abundance of accommodation and space for that perfect escape from city living.
Upstairs, the sophisticated yet casual interior showcases a palette of neutrals inviting the natural light in. The spacious living and lounge area features a natural wood fireplace that joins the stylish kitchen and is the centre of the home.
The lounge and dining area each spill out to a sizeable undercover balcony and is the perfect place for entertaining or everyday relaxed living. The kitchen is bathed in white and is functional with its abundance of white cabinetry, benchtops and appliances. Orientated to serve the generous lounge and dining area, the kitchen is the place to be.
The master bedroom and bedroom two are each located on either side of the lounge/ dining area and have individual bathrooms each with quality fit-out.
On the lower floor (entry-level) are a further four bedrooms with views of the garden. The primary bathroom services the bedrooms and is fitted beautifully with a frameless shower, single vanity unit and WC.
Downstairs is further enhanced by another lounge area and is the perfect place for the kids to chill and watch a movie.
With plenty of grassed areas outside, there is plenty of space to enjoy kicking a footy or backyard cricket after a day at the beach.
Offering a fantastic holiday home for a large family with easy access to the beautiful Eagle Bay beach, you are placed centrally in Cape Naturaliste, a short drive to Dunsborough town and have easy access to the wider Margaret River Region.
Other things to note
Note: Firewood is available from May to September. Outside of this period, guests are welcome to purchase firewood from any local service station.
Firewood is available upon request before arrival. Please inform us 3 days before arrival if you would like to order. Firewood is available for $35 per bag, and Kindling is $35. If you order a set, it's only $65 for a bag of firewood and kindling.
This 6 Bedrooms House provides accommodation with Fireplace/Heating, Kitchen, Parking, for your convenience. This House features many amenities for guests who want to stay for a few days, a weekend or probably a longer vacation with family, friends or group. This House is less than 1 km from Naturaliste, and gives visitors the opportunity to explore it. The rental House has 6 Bedrooms and 3 Bathrooms to make you feel right at home.
Check to see if this House has the amenities you need and a location that makes this a great choice to stay in Naturaliste. Enjoy your stay in Naturaliste at this House.
Amenities
Facility Overview
-
Towels provided
-
Hair dryer
-
Bathtub or shower
-
3 bathrooms
-
6 bedrooms
-
Bed sheets provided
-
Dining table
-
Fireplace
-
Microwave
-
Coffee/tea maker
-
Dishwasher
-
Stovetop
-
Cookware/dishes/utensils
-
Refrigerator
-
Toaster
-
Oven
-
Laundry facilities
-
Washing machine
-
Onsite parking
-
Pet friendly
-
Smoke-free property
-
TV
-
Property does not allow children
-
English
-
Travel crib
-
WiFi available
-
Balcony
-
Barbecue grill
-
Carbon monoxide detector not reported (host has not indicated whether there is a carbon monoxide detector on the property; consider bringing a portable detector)
-
Smoke detector installed (host has indicated there is a smoke detector on the property)
Policies
FAQ's
Is this Naturaliste house pet-friendly for guests?
Yes, pets are allowed at this property. Check the guest reviews to learn what guests had to share.
Does the Naturaliste house have a swimming pool?
No, this Naturaliste house does not have a swimming pool. Check the Facility Overview section for details about the pool and other available facilities.
How much does it cost per night to stay in Naturaliste house?
Best-rates for the Naturaliste house starts from $494 per night with includes Kitchen, Parking, TV, Bedding/Linens, Wellness Facilities, Barbecue/Outdoor Cooking, Child Friendly, Internet, Laundry, Pet Friendly, Balcony/Terrace, Security/Safety, Fireplace/Heating with all other facilities. Cabinns™ offers a wide range of accommodation options for all types of travelers. Our goal is to match every traveler with their perfect cabin, resort, or rental while providing a comfortable and enjoyable stay.
Is Naturaliste house a family-friendly place to stay?
Based on the information we have received from the owner or our partner, this is considered to be a family-friendly property. Families have rated this house Good or guests have recommended them suitable for families. As reported by the owner or manager, the house has specified that children are welcome. Please see details about suitability for your family or inquire with the property to learn more.
Is the Naturaliste house wheelchair accessible or offer services for disabled guests?
Based on the information received from our partner, the Naturaliste house has not specified they are wheelchair accessible. Likewise, there is not an elevator specified as being available at the property. Specific accessibility details may be addressed in the property details section of this page.
What is the minimum night stay policy for the Naturaliste house?
Based on the information reported by the owner or manager, the Naturaliste house indicates 1 day stay policy at this house. Guests are cautioned that the minimum stay policy may differ based on seasonality or availability and may be at the discretion of the owner or manager.
What cancellation policy is in place for Naturaliste house?
Based on the information reported by the owner or manager, details for the cancellation policy for the Naturaliste house are as follows: Cancellation policy Guests are cautioned that the cancellation policy may differ based on seasonality, availability, or current travel restrictions. Guests should also be aware that this policy may be subject to change and should be confirmed prior to booking. More details may be available on this page in the property description. However, early check-in or late check-out can sometimes be negotiated between the guest and the owner or the manager of this property.